

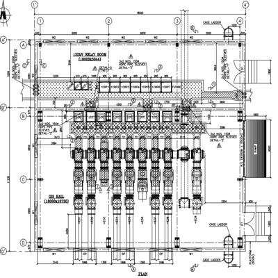
GAS INSULATED SWITCHGEAR SUBSTATION DESIGN : Due to scarcity of land, getting sufficient space for installing large air insulated switchyard type substations is difficult in most of the places nowadays. Within congested city areas, substations need to be built in even smaller spaces. To reduce substation space requirement, it is necessary that the phase to phase and phase to earth clearances are reduced to optimise equipment size. It is proven that SF6 gas provides much better insulating properties compared to air, has helped in reducing these clearances and thus gas insulated switchgear substations are widely used by all utilities in India at all voltage levels starting from 33kV to 765kV. Gas insulated switchgears are generally housed in a pressurised building to facilitate easy operation and maintenance. Each GIS bay is provided with its own Local control panel to house the control switches, bay control and interlocks, meters, alarm annunciations. The electrical protections of the GIS bay is provided by numerical relays mounted in a separate Relay panel located in separate room adjacent to the GIS hall. Due to higher capacitance in the GIS circuit, a very fast transient over voltage situation exists during the disconnect switch operation, which creates the need of special screened cables being used between the GIS equipment and the Local control Abel of each bay. Primary connection between GIS bays and outdoor Switchyard equipment like Transformers or Line gantries are done either through Gas insulated bus ducts (or cables) upto 220kV level and by Gas insulated bus ducts at 400kV and 765kV level. Satcon is practicing GIS substation designing upto 400kV since 2004. All type of drawings and design calculations of electrical, civil, structural, substation automation, fire detection and protection (NIFPS or Clean agent or Water based), communication systems for GIS substations upto 400kV are available with Satcon. The designs can be customised with ref to relevant national or international codes and technical spec of the Customer.
We hate spam too.